University of applied sciences Darmstadt, Germany
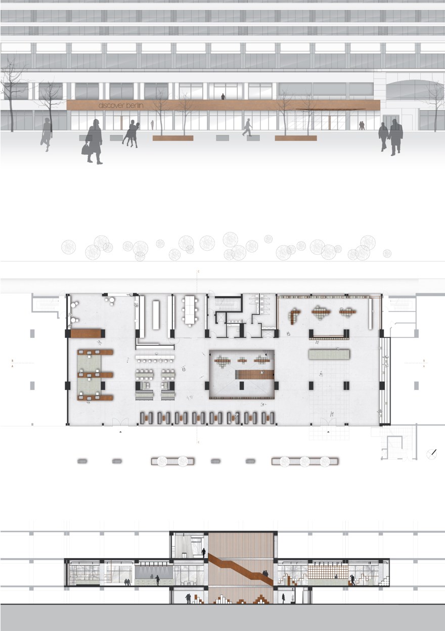
This concept consisted of creating a new space to experience the image of Berlin with its lifestyle.
Plans and renderings are made with VectorWorks, Cinema 4D, Adobe Illustrator and Adobe Photoshop.

The visitor is directed by the material Corten steel and the formal language of the room. Other materials are deliberately restrained and bright, to accent the characteristic of Corten steel even more.
Two huge glass facades are connecting the city life with the nature, while a breakthrough, in the center of the building, offers the visitor a view onto all floors.





